Piso de 4 hab. con vistas al mar en Mas Mel 🌊
Calafell - REF. 1714

101 m2

4

2

5
venta: 329.000 €
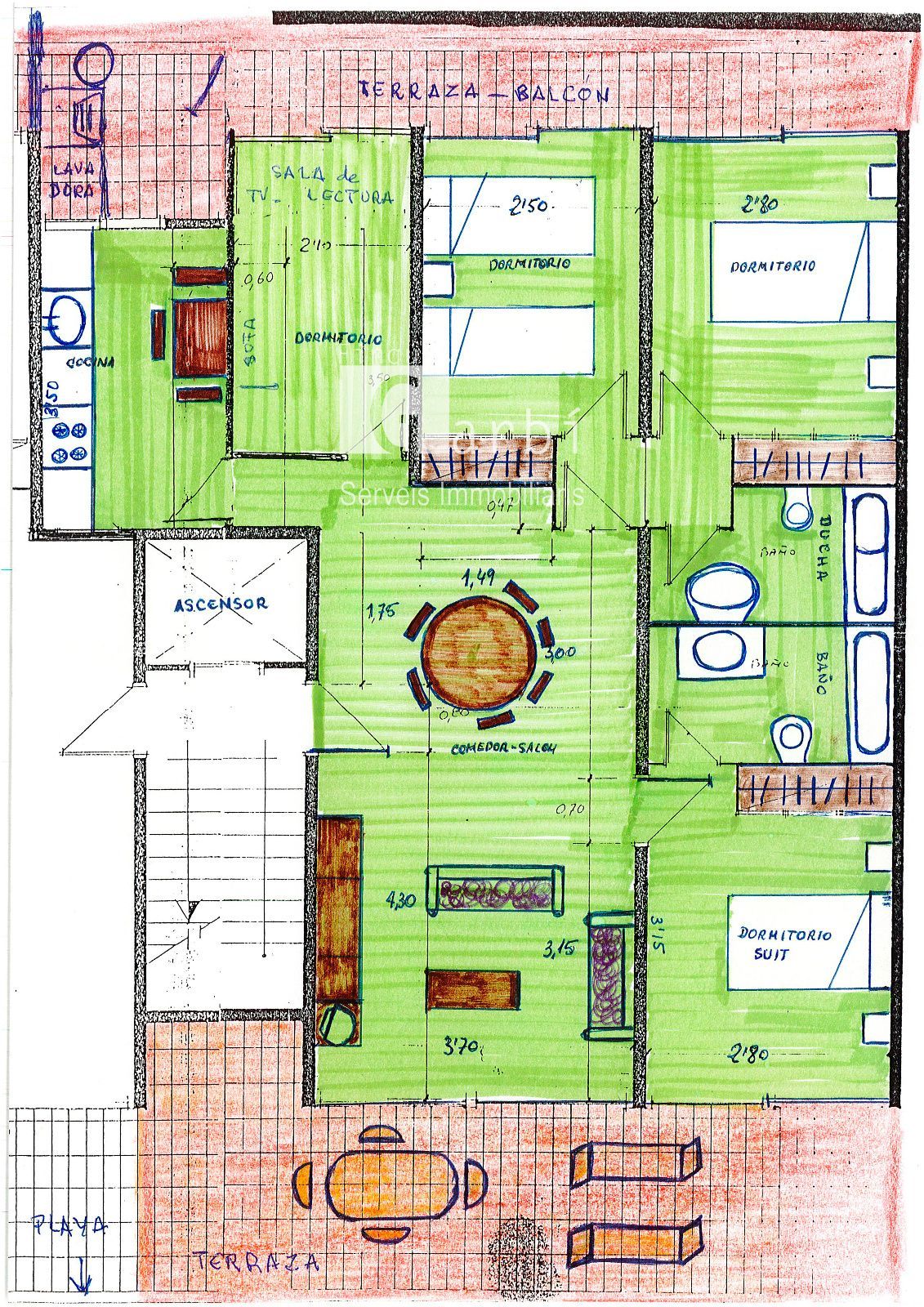
Descripción

🏠 Espacios amplios y funcionales

La distribución está pensada para aprovechar cada metro cuadrado, garantizando comodidad para toda la familia:

4 Habitaciones: Estancias tranquilas y con excelente iluminación natural, ideales para el descanso. 🛏️

2 Baños completos: Diseño práctico y funcional. 🚿

Salón-Comedor: El corazón de la vivienda, amplio y luminoso, con acceso directo a la zona exterior. 🛋️

Cocina integrada: Totalmente equipada y abierta al salón para fomentar una convivencia fluida. 🍳

☀️ Un oasis de luz y exteriores

Lo que realmente marca la diferencia en esta propiedad son sus zonas exteriores y su orientación sur, que asegura sol durante gran parte del día:

Terraza principal: Un auténtico escaparate con espectaculares vistas al mar. El lugar perfecto para desayunar viendo el horizonte. 🌊

Terraza en altura y terraza acristalada: Espacios extra que multiplican las posibilidades de uso durante todo el año, sin perder privacidad. 🌅

Dos balcones adicionales: Refuerzan la entrada de luz y ofrecen vistas despejadas. 🏙️

✨ Acabados y ubicación técnica

Suelos de gres: Estética moderna y de muy fácil mantenimiento. 🧹

Diseño contemporáneo: El edificio combina estilo y facilidades de acceso para una movilidad total. 🏗️

Ubicación Premium: Situado en la prestigiosa zona de Mas Mel, a escasos metros de la arena. Tienes el ocio y los servicios a mano, pero con la paz de un entorno residencial. 🏖️

🎯 ¿Por qué elegir este piso?

Es una propiedad versátil. Su tamaño y ubicación la hacen perfecta para quien busca calidad de vida junto al litoral o para quien desea un activo inmobiliario seguro en una de las mejores zonas de la Costa Dorada.

Características
Precio Venta 329.000 €
Precio/m² 3.257
Gastos de comunidad 189 €
I.B.I. 656 €
Año de construcción 1978
Cédula de Habitabilidad CHT00358525001
Construidos 101 m2
Dormitorios 4
Baños 2
Amueblado
Cocina Amueblada
Calefacción Electrica
Trastero
Terraza
Altura/Planta 5
2ª línea de playa
Estado Entrar a vivir
Tipo de suelo Gres
Ascensor
Calificación Energética (E) VER
Luz
Agua

Visita Virtual

Vídeos
Escalas de eficiencia


Eficiencia Emisiones: 30,00
Eficiencia Consumo: 168,00
168
30

Contáctanos

Si deseas más información sobre esta propiedad, por favor, rellena el formulario.

 Sí, he leído y/o acepto las Condiciones de uso y la Política de privacidad
Inmuebles similares:
 
275.000 €
Ref. 1852  108 m2  3  2

Planta baja situada en 2º línea de mar cerca de estación de tren , Puerto deportivo, farmacias, restaurantes.

La vivienda cuenta con tres habitaciones dobles ,comedor amplio con salida a terraza a nivel y escaleras que acceden a un patio con barbacoa , un aseo , un baño completo y cocina equipada totalmente reformados

El inmueble listo para entrar a vivir 

 
346.840 €
Ref. 1491  143 m2  3  2
Piso en venta en Cunit, con 143 m2, 3 habitaciones y 2 baños, Piscina, Ascensor, Aire acondicionado y Calefacción Central.